Beschreibung
Dieser sehr hochwertig verarbeitete Trommelfilter aus PP Kunststoff behauptet sich seit einigen Jahren sehr erfolgreich am Markt.
Ein durchdachter, klassischer Aufbau gewährleistet bei diesem Trommelfilter eine absolut reibungslose und störungsfreie Funktion und bietet Ihnen so viele Jahre Freude an Ihrer Teichanlage.
Der Filter ist komplett aus dem technischen Kunststoff PP = Polypropylen hergestellt, welches eine hohe Lebensdauer und Stabilität garantiert.
Der von uns angebotene Trommelfilter wird als Schwerkraftsystem betrieben. Alternativ kann auch ein gepumptes System bestellt werden. Bei Interesse wenden Sie sich jederzeit an uns.
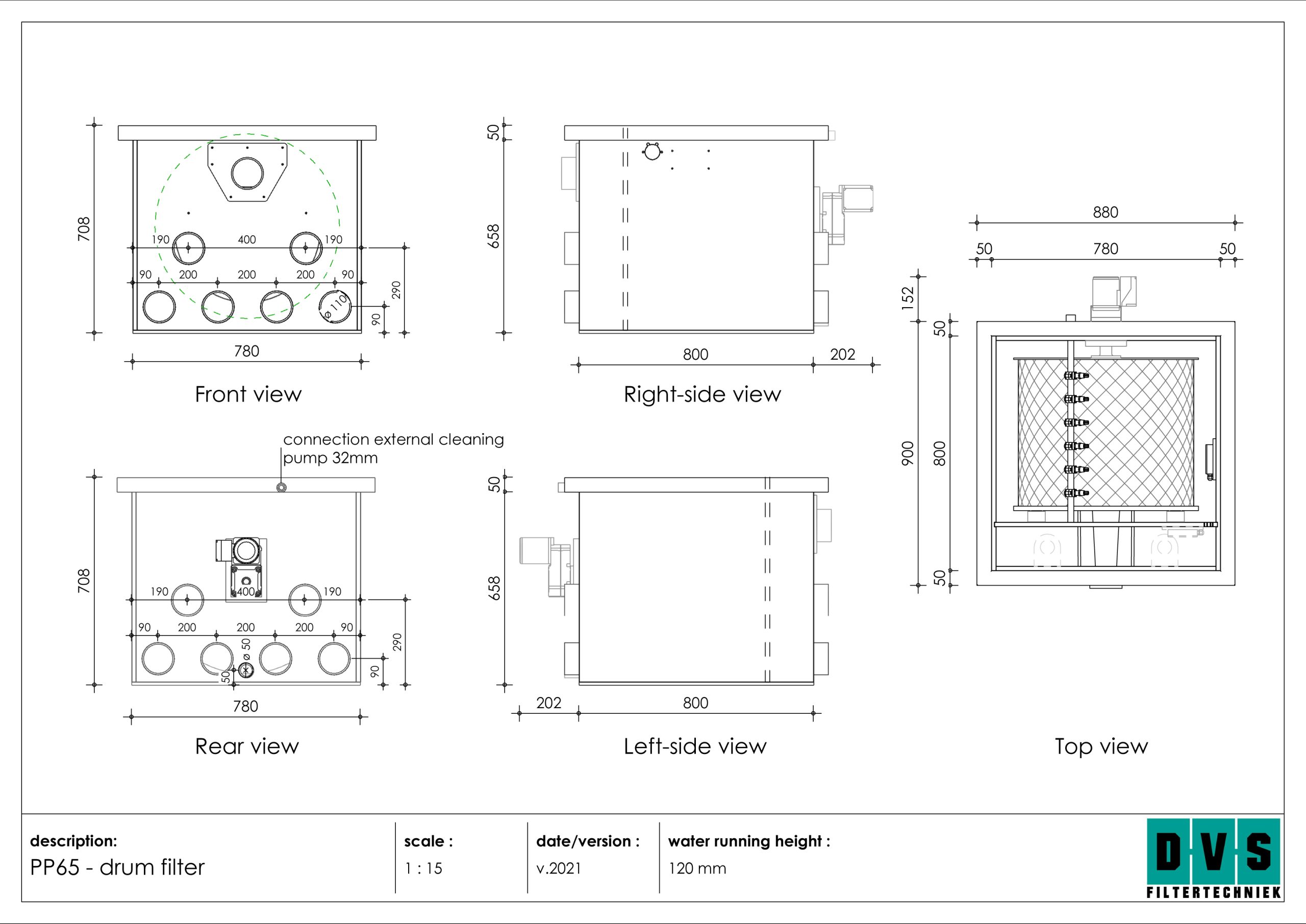
Grundsätzlich wird der PP65-P mit 4 Zuläufen und 4 Abläufen mit jeweils 110mm Durchmesser ausgeliefert – siehe ebenfalls technische Zeichnung
Optional können zusätzliche Zu- bzw. Abläufe in unterschiedlichen Durchmessern gegen Aufpreis bestellt werden.
Eine Unterwasserspülpumpe 55/50 ist bereits eingebaut.
Die Lieferung erfolgt inkl. PP-Deckel und Standard Steuerung.
Standard-Steuerung besitzt folgende Funktionen:
automatische Reinigung – manuelle Spülung möglich
Steckdosen für Spülpumpe, Teichpumpe und Motor
Reinigung (Zeit/Dauer) und Spülniveau sind einstellbar
Standard-Trockenlaufschutz für Teichpumpe
Zur Erfüllung aller Regelaufgaben ist ein voreingestelltes Sensorpaket verbaut, das alle wichtigen Wasserstände überprüft:
Mindestwasserstand – der nach Spülung erreicht werden muss.
Spülwasserstand – vor Auslösung der Spülung erreicht
Trockenlaufniveau – schaltet die Förderpumpe aufgrund Wassermangels ab.
Technische Daten PP65-P
- Ausführung: Schwerkraft
- Durchfluss bis zu 65m³ pro Stunde
- Einbauhöhe ca. 12cm über Wasserniveau
Material
- Filterkammer PP 10/15mm
- Trommel PP 15mm
- Edelstahl 316/304
- Silikondichtungen
- PP-Gehäuse mit CNC-Maschine geschnitten
Spezifikationen:
- Standard Ein- und Ausgänge gem. Zeichnung
- Änderungen Ein- und Ausgänge nach Absprache möglich evtl. Aufpreis
- 1x 110mm Schmutzablauf
- Durchmesser der Trommel 60cm x 50cm
- Patentiertes 75Micron Edelstahlsieb
- 2x 90mm Trommel-Bypass
- Sprühdüsen austauschbar und Spülrinne demontierbar
- 50NM Antriebsmotor mit 4 u/min
- Deckel im Lieferumfang enthalten
Steuerung:
- Automatische Reinigung, Plug and Play über Sensor mit Messstiften
- Manuelle Spülung über Spülknopf möglich
- Reinigung (Zeit/Dauer) sowie Spülniveau einstellbar
- 3 Steckdosen für Spülpumpe, Teichpumpe und Motor enthalten
- Standard Trockenlaufschutz für Teichpumpe
- Alle Filtermodule können ausgetauscht werden
- Filterlieferung mit ausführlicher Gebrauchsanleitung
- CE-Zeichen vorhanden
- 2 Jahre Garantie (ausgenommen auf das Sieb)








